陈育东

设计理念

设计师在此次地中海风格的设计中,运用了比较典型的地中海的蓝与白的搭配特征,来诠释整个空间。让人联想到白色的村庄与沙滩、碧海蓝天连成一片,甚至门套、沙发、椅

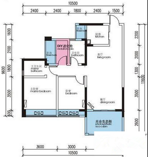
楼盘:XXXX风格:田园户型:公寓面积:78

预约本案例设计师